泵的知識 PUMP KNOWLEDGE
行業新聞
您當前位置:網站首頁 >> 泵的知識 >> 詳情內容
WFB不銹鋼碳鋼增強聚丙烯316不銹鋼防爆自控自吸泵結構圖
時間:2014/4/24 來源:浙江揚子江泵業有限公司
一、概述:

WFB系列無密封自控自吸泵是引進國外先進技術二次開發的新型產品。適用于含固體顆粒的液體、含油污水及不易產生泡沫的各種液體的輸送,實現“一次引流,終身自吸”,根據輸送介質不同,可采用不銹鋼、增強聚丙烯、碳鋼、鑄鐵等多種材料制造。廣泛適用于電子、電力、化工、冶金、醫藥、食品、電鍍、環保、消防、市政、凈水、國防軍工、紡織印染、采掘選礦等行業。
二、特點:
1、采用液體動力密封形式,消除了傳統水泵的填料密封、機械密封易磨損、易滲漏的缺點,徹底杜絕了“跑、冒、滴、漏”現象,是替代各種潛水泵、潛污泵、液下泵的理想設備。
2、運行過程中密封無磨擦、無磨損,使用壽命是立式液下泵、潛水泵10倍以上。
3、引用真空泵抽氣原理,開機后,抽吸掉泵進口管路中的空氣,達到自吸目的,占地面積小,安裝使用方便。
4、進口管路可安裝空氣自控電磁閥,關機后自動消除泵內液體衡吸,實現“一次灌液,終身自吸”。
5、效率高、振動小、噪音低、移動靈活、拆卸簡便、易于安裝、不需地腳固定,免去了長軸液下泵運輸,安裝、維修等困難。
6、具有優越的自控功能,可與高科技領域和高度自動化系列統配套使用。
三、關于配套電機功率的說明:
為了合理的配套電機,我們借鑒發達國家的先進經驗,把水泵分為A、B、C三種工況適應等級,本說明中配套的電機功率,是根據A級等級匹配的。您如在B、C級工況使用,可根據具體情況,相應降低配套電機功率。
A級工況條件是:連續運行,吸程、流量、揚程三項性能均需達標(選定型號的規定標準);
B級工況條件是:連續運行,三項性能只需兩項達標;
C級工況條件是:間隔運行,三項性能只需一項達標;
四、型號意義:

|
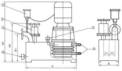
6型泵示意圖(長方型)
①電動空氣控制閥 ②出液口(帶逆止閥,本單位供) ③吸液口 ④放空口 ⑤加液口 ⑥熱源進出
|
|
5型泵示意圖(推車型)
①電動空氣控制閥 ②吸液口 ③加液口 ④出液口(帶逆止閥,本單位供) ⑤放空口
|
2、型號意義舉例:

3、完整的型號書寫方式。假設水泵的要求是:造型為推車移動型,材質為不銹鋼,吸液口徑為40mm,性能分類為A4。這臺水泵的完整型號為“5BXG40WFB-A4-2”。
假設水泵的要求是:造型為長方形防爆型,其它要求同上,這臺水泵的完整型號為“1.3BXG40WFB-A4-2”。
假設水泵的要求是:造型為圓錐型防爆型,其它要求同上,這臺水泵的完整型號為“2.4BXG40WFB-A4-2”。
4、法蘭采用中華人民共和國機械部標準制造。標準代號JB81-59;GB9115.3-88。非金屬材質水泵的法蘭壓力0.6MPa;金屬材質水泵的法蘭壓力1.0MPa。本廠水泵出廠時,進出液口各配一只反法蘭。
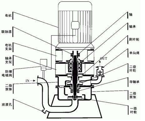
無密封自控自吸泵雙級泵體結構概述:
無密封自控自吸泵有單級泵體和雙級泵體兩種形式。對揚程高于50米,采用多級泵體,多級葉輪設計。提高水泵效率,保證滿足客戶要求。
無密封自控自吸泵轉子跟電機聯接有兩種形式。一種水泵轉子部分直接跟電機相連,一種水泵轉子通過聯軸器形式跟電機相連。采用聯軸器聯接,便于水泵拆卸和維修保養。
無密封自控自吸泵有單級泵體和雙級泵體兩種形式。對揚程高于50米,采用多級泵體,多級葉輪設計。提高水泵效率,保證滿足客戶要求。
無密封自控自吸泵轉子跟電機聯接有兩種形式。一種水泵轉子部分直接跟電機相連,一種水泵轉子通過聯軸器形式跟電機相連。采用聯軸器聯接,便于水泵拆卸和維修保養。
|
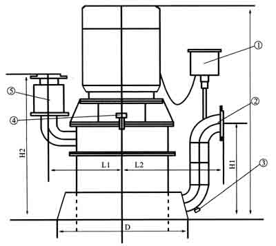
7型泵(多級型)示意圖
①電動空氣控制閥 ②吸液口 ③放空口 ④加液口 ⑤出液口(帶逆止閥,本單位供)
|
感謝您訪問我們揚子江泵業的網站m.xinbochuangdz.com,如有任何水泵疑問我們一定會盡心盡力為您提供優質的服務。














