自動變頻恒壓成套生活給水設備安裝尺寸參考圖
時間:2013/10/22 來源:浙江揚子江泵業有限公司
自動給水設備是一種新型的無塔給水設備,由水泵機組、控制設備、增壓穩壓設備三大部分組成。供水能力由水泵機組決定,系統的協調運行由控制系統控制,增壓穩壓設備主要作用是貯能保壓,應付少供水以及正常的管道泄漏,減小泵的啟停次數,延長設備的壽命,同時也是實行自動控制不可缺少的一部分。大量用水時,管網壓力下降,水泵自動啟動供水。
自動給水設備根據工作方式的不同時可分為氣壓自動給水設備和變頻調整恒壓給水設備,各有特點。廣泛應用于生活、消防、生產、噴淋等多種領域。
水泵是給水設備的基礎,是給水設備顯現其供水能力的根本保證,為給水設備配套的水泵是通用的,可以是各種流量、揚程合適的泵類。按照流量、揚程的需要產品可能1~4或更多的水泵并聯運行,水泵機組與另外一套增壓穩壓設備(水流量泵組)作為小流量范圍內與主泵切換運行,以提高效率,進一步節約能源,降低給水成本。
根據設備的工作方式不同可分為生活型、消防型、噴淋型和生活消防共用型等形式。
QBG型生活及工業用變頻給水沒備是將變頻調速技術、可編程控制技術應用于水泵自動控制設備之中,與電機泵組相結合的新型機電一體化供水設備。
該設備采用原裝進口交流變頻調整器、工業級可編程控制器、數字PID調節器、進口低壓電器、壓力傳感器、液位控制器及泵等構成閉環調節變頻調整速供水系統。該系統可概括管網瞬時壓力變化,自動詞節某臺水泵電機的轉速和多臺水泵電機的投入和退出,滿足用戶恒壓變量供水或變壓變量供水的需要,使供水管網末端壓力保持恒定,使得整個供水系統始終保持高效節能的佳狀態。
在供水系統中應用,可取代傳統給水設備中的水塔供水、高位水箱供水或氣壓供水等供水方式.節能效果顯著,是國家重點推廣應用的節能新技術產品。
型號意義:

設備特點
1.結構緊湊,體積小,占地少,無須建造高位水箱或水塔,投資省,安裝快,便于集中管理;
2.采用進口變頻器及相關元器件,設計合理,操作簡便性能可靠,全自動運行;
3.具備多種故障顯示及備查記錄,完善的欠壓、過壓、過載、短路、缺相、水源缺水自動保護停機等保護功能,使用安全,維護簡便;
4.自由設定管網壓力.按實際用水量調節水泵轉速,使其始終處于高效運轉狀態;采用多臺小功率泵組成泵組代替大功率泵更能適合流量的急劇變化,避免“大馬拉小車”現象,節能效果更為顯著。與恒速泵供水相比,消除了超壓和回流的無功損耗,節能率達到20~50%;
5.由變頻器或軟起動器實現水泵軟起動停止,使電網和管網免受沖擊。無水錘現象,大大降低設備運行噪音,延長相關設備的使用壽命;
6.多臺泵多種循環運行方式,均為各泵運行時間,避免其中某臺水泵因閑置而銹蝕;
7.直接向用戶供水,避免水質二次污染;
8.品種規格齊全,可任意縱使配套,應用范圍廣;
9.控制程序化,可按用戶需要實現多種控制方式。例如:定時開關控制、消防聯動、小流量和零流量自動關機睡眠、上位機集中管理等;
10.管網常壓供水,可避免外露管路凍裂;可按需要任意調節設備供水壓力,滿足用水高峰期建筑頂層的水壓要求。
適用范圍
1.高層、城鎮居民小區、企事業單位等生活用水。
2.各類工業用水(如冷卻水循環等要求恒壓供水的生產用水)。
3.各類自來水廠、污水處理廠、機場、家業排灌站和噴灌站。
4.環保水處理、滲透分析系統、生產線加工系統、工業廠房清洗。
5.油田輸油管道、油庫、油港的恒壓輸油系統。
6.舊有供水系統(氣壓罐、水塔、高位水箱)改造更新。
7.工業鍋爐穩壓補水系統、熱水供應系統。
設備結構組成
變頻供水成套主要由:主泵組、變頻調整供水控制系統、穩壓泵組(可選組件)、穩壓氣壓罐(可選組件)等組成。
主泵組
供水主泵組主要由DL型立式多級離心泵、GDL型立式多級不銹鋼泵和以槽鋼和鋼板焊接制成的鋼制基礎構成,一般由2—3臺同一型號水泵組成。變頻調整供水控制系統主要由交流變頻調壓器、可編程控制器(微機)、數字PID調節器、外圍操作執行機構及保護電路、壓力傳感器、蓄水池液位控制器(水源缺水保護用)等組成。
穩壓泵組
穩壓泵組主要由一至二臺小流量水泵構成,其供水揚程大于或等于主泵的供水揚程。它只在管網小流量或零流量時(例如夜晚)時自動投入運行,維護管網的壓力,補充小流量用水或管網的滲漏,同時使主泵在小流量和零流量用水時處于停機狀態。
氣壓罐
氣壓罐是一種密閉容器。大流量供水時,由水泵加壓,罐內貯存的氣體被壓縮;在小流量或零流量供水時,被壓縮氣體泄壓膨脹,將貯存在罐內的水壓輸入配水管網,補充用戶的小流量用水或管網滲漏,同時使主泵在小流量和零流量用時處于停機狀態。
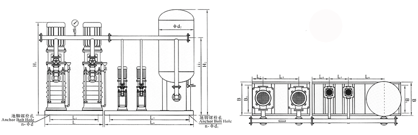
①主泵尺寸參數對照表
|
型號 |
L |
L1 |
L2 |
L3 |
n-Фd |
H1 |
H3 | ||||
|
二臺泵 |
三臺泵 |
四臺泵 |
二臺泵 |
三臺泵 |
四臺泵 | ||||||
|
40DL |
900 |
1450 |
2000 |
800 |
1350 |
1900 |
175 |
550 |
4-Ф19 |
具體尺寸參考DL型立式多級泵說明書 |
具體尺寸按DL型立式多級泵出口高度而定 |
|
50DL |
920 |
1480 |
2040 |
820 |
1380 |
1940 |
180 |
560 |
4-Ф19 | ||
|
65DL |
1060 |
1690 |
2320 |
960 |
1590 |
2220 |
215 |
630 |
4-Ф19 | ||
|
80DL |
100 |
1750 |
2400 |
1000 |
1650 |
2300 |
225 |
650 |
4-Ф19 | ||
|
100DL |
1140 |
1810 |
2480 |
1040 |
1710 |
2380 |
235 |
670 |
4-Ф19 | ||
|
150DL |
1140 |
1810 |
2480 |
1040 |
1710 |
2380 |
235 |
670 |
4-Ф19 | ||
|
200DL |
1450 |
2300 |
3150 |
1350 |
2200 |
3050 |
300 |
850 |
4-Ф19 | ||
②穩壓泵尺寸參數對照表
|
型號 |
L4 |
L5 |
L6 |
L7 |
L8 |
n-Фd |
|
25GDL |
315 |
430 |
具體尺寸按GDL型立式多級泵及配套氣壓罐大小而定 |
4-Ф19 | ||
|
40GDL |
330 |
460 |
4-Ф19 | |||
|
50GDL |
350 |
500 |
4-Ф19 | |||
|
65GDL |
350 |
500 |
4-Ф19 | |||
|
80GDL |
410 |
565 |
4-Ф19 | |||
|
100GDL |
410 |
565 |
4-Ф19 | |||
③穩壓罐尺寸參數對照表
|
Фd2 |
B |
B1 |
H2 |
總容積 L |
調節容積 L |
|
Ф600 |
600 |
550 |
1900 |
400 |
180 |
|
Ф800 |
700 |
650 |
2400 |
900 |
350 |
|
Ф1000 |
900 |
850 |
2480 |
1370 |
411 |
|
Ф1200 |
1100 |
1050 |
2670 |
2300 |
690 |
|
Ф1400 |
1300 |
1250 |
3005 |
3400 |
1020 |
|
Ф1600 |
1400 |
1350 |
3450 |
5800 |
2100 |
|
Ф2000 |
1800 |
1750 |
3650 |
9000 |
2950 |

| 型號 | L | L1 | L2 | L3 | L4 | L5 | L6 | L7 | L8 | Фd2 | B | B1 | n-Фd | H2 | 總容積L | 調節容積L | H3 |
| QBG6/2-2/2-0.36 | 900 | 700 | 175 | 550 | 315 | 430 | 650 | 1495 | 1695 | 600 | 600 | 550 | 4-Ф19 | 1900 | 400 | 180 | 按泵出口高度而定 |
| QBG6/2-2/2-0.48 | 900 | 700 | 175 | 550 | 315 | 430 | 650 | 1495 | 1695 | 600 | 600 | 550 | 4-Ф19 | 1900 | 400 | 180 | 按泵出口高度而定 |
| QBG6/2-2/2-0.60 | 900 | 700 | 175 | 550 | 315 | 430 | 650 | 1495 | 1695 | 600 | 600 | 550 | 4-Ф19 | 1900 | 400 | 180 | 按泵出口高度而定 |
| QBG6/2-2/2-0.72 | 900 | 700 | 175 | 550 | 315 | 430 | 650 | 1495 | 1695 | 600 | 600 | 550 | 4-Ф19 | 1900 | 400 | 180 | 按泵出口高度而定 |
| QBG6/2-2/2-0.84 | 900 | 700 | 175 | 550 | 315 | 430 | 650 | 1495 | 1695 | 600 | 600 | 550 | 4-Ф19 | 1900 | 400 | 180 | 按泵出口高度而定 |
| QBG6/2-2/2-0.96 | 900 | 700 | 175 | 550 | 315 | 430 | 650 | 1495 | 1695 | 600 | 600 | 550 | 4-Ф19 | 1900 | 400 | 180 | 按泵出口高度而定 |
| QBG12/2-2/2-0.36 | 920 | 720 | 180 | 560 | 315 | 430 | 650 | 1495 | 1695 | 600 | 600 | 550 | 4-Ф19 | 1900 | 400 | 180 | 按泵出口高度而定 |
| QBG12/2-2/2-0.48 | 920 | 720 | 180 | 560 | 315 | 430 | 650 | 1495 | 1695 | 600 | 600 | 550 | 4-Ф19 | 1900 | 400 | 180 | 按泵出口高度而定 |
| QBG12/2-2/2-0.60 | 920 | 720 | 180 | 560 | 315 | 430 | 650 | 1495 | 1695 | 600 | 600 | 550 | 4-Ф19 | 1900 | 400 | 180 | 按泵出口高度而定 |
| QBG12/2-2/2-0.72 | 920 | 720 | 180 | 560 | 315 | 430 | 650 | 1495 | 1695 | 600 | 600 | 550 | 4-Ф19 | 1900 | 400 | 180 | 按泵出口高度而定 |
| QBG12/2-2/2-0.84 | 920 | 720 | 180 | 560 | 315 | 430 | 650 | 1495 | 1695 | 600 | 600 | 550 | 4-Ф19 | 1900 | 400 | 180 | 按泵出口高度而定 |
| QBG12/2-2/2-0.96 | 920 | 720 | 180 | 560 | 315 | 430 | 650 | 1495 | 1695 | 600 | 600 | 550 | 4-Ф19 | 1900 | 400 | 180 | 按泵出口高度而定 |
| QBG30/2-6/2-0.32 | 1060 | 860 | 215 | 630 | 330 | 460 | 670 | 1560 | 1760 | 600 | 600 | 550 | 4-Ф19 | 1900 | 400 | 180 | 按泵出口高度而定 |
| QBG30/2-6/2-0.48 | 1060 | 860 | 215 | 630 | 330 | 460 | 670 | 1560 | 1760 | 600 | 600 | 550 | 4-Ф19 | 1900 | 400 | 180 | 按泵出口高度而定 |
| QBG30/2-6/2-0.64 | 1060 | 860 | 215 | 630 | 330 | 460 | 670 | 1560 | 1760 | 600 | 600 | 550 | 4-Ф19 | 1900 | 400 | 180 | 按泵出口高度而定 |
| 型號 | L | L1 | L2 | L3 | L4 | L5 | L6 | L7 | L8 | Фd2 | B | B1 | n-Фd | H2 | 總容積L | 調節容積L | H3 |
| QBG30/2-6/2-0.80 | 1060 | 860 | 215 | 630 | 330 | 460 | 670 | 1560 | 1760 | 600 | 600 | 550 | 4-Ф19 | 1900 | 400 | 180 | 按泵出口高度而定 |
| QBG30/2-6/2-0.96 | 1060 | 860 | 215 | 630 | 330 | 460 | 670 | 1560 | 1760 | 600 | 600 | 550 | 4-Ф19 | 1900 | 400 | 180 | 按泵出口高度而定 |
| QBG30/2-6/2-1.12 | 1060 | 860 | 215 | 630 | 330 | 460 | 670 | 1560 | 1760 | 600 | 600 | 550 | 4-Ф19 | 1900 | 400 | 180 | 按泵出口高度而定 |
| QBG50/2-6/2-0.4 | 1100 | 900 | 225 | 650 | 330 | 460 | 770 | 1760 | 1960 | 800 | 800 | 750 | 4-Ф19 | 2400 | 900 | 350 | 按泵出口高度而定 |
| QBG50/2-6/2-0.6 | 1100 | 900 | 225 | 650 | 330 | 460 | 770 | 1760 | 1960 | 800 | 800 | 750 | 4-Ф19 | 2400 | 900 | 350 | 按泵出口高度而定 |
| QBG50/2-6/2-0.8 | 1100 | 900 | 225 | 650 | 330 | 460 | 770 | 1760 | 1960 | 800 | 800 | 750 | 4-Ф19 | 2400 | 900 | 350 | 按泵出口高度而定 |
| QBG50/2-6/2-1.0 | 1100 | 900 | 225 | 650 | 330 | 460 | 770 | 1760 | 1960 | 800 | 800 | 750 | 4-Ф19 | 2400 | 900 | 350 | 按泵出口高度而定 |
| QBG50/2-6/2-1.2 | 1100 | 900 | 225 | 650 | 330 | 460 | 770 | 1760 | 1960 | 800 | 800 | 750 | 4-Ф19 | 2400 | 900 | 350 | 按泵出口高度而定 |
| QBG50/2-6/2-1.4 | 1100 | 900 | 225 | 650 | 330 | 460 | 770 | 1760 | 1960 | 800 | 800 | 750 | 4-Ф19 | 2400 | 900 | 350 | 按泵出口高度而定 |
| QBG72/2-6/2-0.4 | 1140 | 940 | 235 | 670 | 330 | 460 | 870 | 1960 | 2160 | 1000 | 1000 | 950 | 4-Ф19 | 2480 | 1370 | 411 | 按泵出口高度而定 |
| QBG72/2-6/2-0.6 | 1140 | 940 | 235 | 670 | 330 | 460 | 870 | 1960 | 2160 | 1000 | 1000 | 950 | 4-Ф19 | 2480 | 1370 | 411 | 按泵出口高度而定 |
| QBG72/2-6/2-0.8 | 1140 | 940 | 235 | 670 | 330 | 460 | 870 | 1960 | 2160 | 1000 | 1000 | 950 | 4-Ф19 | 2480 | 1370 | 411 | 按泵出口高度而定 |
| QBG72/2-6/2-1.0 | 1140 | 940 | 235 | 670 | 330 | 460 | 870 | 1960 | 2160 | 1000 | 1000 | 950 | 4-Ф19 | 2480 | 1370 | 411 | 按泵出口高度而定 |
| QBG72/2-6/2-1.2 | 1140 | 940 | 235 | 670 | 330 | 460 | 870 | 1960 | 2160 | 1000 | 1000 | 950 | 4-Ф19 | 2480 | 1370 | 411 | 按泵出口高度而定 |
| QBG72/2-6/12-1.4 | 1140 | 940 | 235 | 670 | 330 | 460 | 870 | 1960 | 2160 | 1000 | 1000 | 950 | 4-Ф19 | 2480 | 1370 | 411 | 按泵出口高度而定 |
| 型號 | L | L1 | L2 | L3 | L4 | L5 | L6 | L7 | L8 | Фd2 | B | B1 | n-Фd | H2 | 總容積L | 調節容積L | H3 |
| QBG100/2-12/2-0.4 | 1140 | 940 | 235 | 670 | 350 | 500 | 870 | 2020 | 2220 | 1000 | 1000 | 950 | 4-Ф19 | 2480 | 1370 | 411 | 按泵出口高度而定 |
| QBG100/2-12/2-0.6 | 1140 | 940 | 235 | 670 | 350 | 500 | 870 | 2020 | 2220 | 1000 | 1000 | 950 | 4-Ф19 | 2480 | 1370 | 411 | 按泵出口高度而定 |
| QBG100/2-12/2-0.8 | 1140 | 940 | 235 | 670 | 350 | 500 | 870 | 2020 | 2220 | 1000 | 1000 | 950 | 4-Ф19 | 2480 | 1370 | 411 | 按泵出口高度而定 |
| QBG100/2-12/2-1.0 | 1140 | 940 | 235 | 670 | 350 | 500 | 870 | 2020 | 2220 | 1000 | 1000 | 950 | 4-Ф19 | 2480 | 1370 | 411 | 按泵出口高度而定 |
| QBG100/2-12/2-1.2 | 1140 | 940 | 235 | 670 | 350 | 500 | 870 | 2020 | 2220 | 1000 | 1000 | 950 | 4-Ф19 | 2480 | 1370 | 411 | 按泵出口高度而定 |
| QBG100/2-12/2-1.4 | 1140 | 940 | 235 | 670 | 350 | 500 | 870 | 2020 | 2220 | 1000 | 1000 | 950 | 4-Ф19 | 2480 | 1370 | 411 | 按泵出口高度而定 |

| 型號 | L | L1 | L2 | L3 | L4 | L5 | L6 | L7 | L8 | Фd2 | B | B1 | n-Фd | H2 | 總容積L | 調節容積L | H3 |
| QBG144/3-12/2-0.4 | 1810 | 1610 | 235 | 670 | 350 | 500 | 870 | 2020 | 2220 | 1000 | 1000 | 950 | 4-Ф19 | 2480 | 1370 | 411 | 按泵出口高度而定 |
| QBG144/3-12/2-0.6 | 1810 | 1610 | 235 | 670 | 350 | 500 | 870 | 2020 | 2220 | 1000 | 1000 | 950 | 4-Ф19 | 2480 | 1370 | 411 | 按泵出口高度而定 |
| QBG144/3-12/2-0.8 | 1810 | 1610 | 235 | 670 | 350 | 500 | 870 | 2020 | 2220 | 1000 | 1000 | 950 | 4-Ф19 | 2480 | 1370 | 411 | 按泵出口高度而定 |
| QBG144/3-12/2-1.0 | 1810 | 1610 | 235 | 670 | 350 | 500 | 870 | 2020 | 2220 | 1000 | 1000 | 950 | 4-Ф19 | 2480 | 1370 | 411 | 按泵出口高度而定 |
| QBG144/3-12/2-1.2 | 1810 | 1610 | 235 | 670 | 350 | 500 | 870 | 2020 | 2220 | 1000 | 1000 | 950 | 4-Ф19 | 2480 | 1370 | 411 | 按泵出口高度而定 |
| QBG144/3-12/2-1.4 | 1810 | 1610 | 235 | 670 | 350 | 500 | 870 | 2020 | 2220 | 1000 | 1000 | 950 | 4-Ф19 | 2480 | 1370 | 411 | 按泵出口高度而定 |
| QBG200/3-18/2-0.4 | 1810 | 1610 | 235 | 670 | 350 | 500 | 970 | 2220 | 2420 | 1200 | 1200 | 1150 | 4-Ф19 | 2670 | 2300 | 690 | 按泵出口高度而定 |
| QBG200/3-18/2-0.6 | 1810 | 1610 | 235 | 670 | 350 | 500 | 970 | 2220 | 2420 | 1200 | 1200 | 1150 | 4-Ф19 | 2670 | 2300 | 690 | 按泵出口高度而定 |
| QBG200/3-18/2-0.8 | 1810 | 1610 | 235 | 670 | 350 | 500 | 970 | 2220 | 2420 | 1200 | 1200 | 1150 | 4-Ф19 | 2670 | 2300 | 690 | 按泵出口高度而定 |
| QBG200/3-18/2-1.0 | 1810 | 1610 | 235 | 670 | 350 | 500 | 970 | 2220 | 2420 | 1200 | 1200 | 1150 | 4-Ф19 | 2670 | 2300 | 690 | 按泵出口高度而定 |
| QBG200/3-18/2-1.2 | 1810 | 1610 | 235 | 670 | 350 | 500 | 970 | 2220 | 2420 | 1200 | 1200 | 1150 | 4-Ф19 | 2670 | 2300 | 690 | 按泵出口高度而定 |
| QBG200/3-18/2-1.4 | 1810 | 1610 | 235 | 670 | 350 | 500 | 970 | 2220 | 2420 | 1200 | 1200 | 1150 | 4-Ф19 | 2670 | 2300 | 690 | 按泵出口高度而定 |
| QBG300/3-18/2-0.4 | 1810 | 1610 | 235 | 670 | 350 | 500 | 1070 | 2420 | 2620 | 1400 | 1400 | 1350 | 4-Ф19 | 3005 | 3400 | 1020 | 按泵出口高度而定 |
| QBG300/3-18/2-0.6 | 1810 | 1610 | 235 | 670 | 350 | 500 | 1070 | 2420 | 2620 | 1400 | 1400 | 1350 | 4-Ф19 | 3005 | 3400 | 1020 | 按泵出口高度而定 |
| QBG300/3-18/2-0.8 | 1810 | 1610 | 235 | 670 | 350 | 500 | 1070 | 2420 | 2620 | 1400 | 1400 | 1350 | 4-Ф19 | 3005 | 3400 | 1020 | 按泵出口高度而定 |
| 型號 | L | L1 | L2 | L3 | L4 | L5 | L6 | L7 | L8 | Фd2 | B | B1 | n-Фd | H2 | 總容積L | 調節容積L | H3 |
| QBG300/3-18/2-1.0 | 1810 | 1610 | 235 | 670 | 350 | 500 | 1070 | 2420 | 2620 | 1400 | 1400 | 1350 | 4-Ф19 | 3005 | 3400 | 1020 | 按泵出口高度而定 |
| QBG300/3-18/2-1.2 | 1810 | 1610 | 235 | 670 | 350 | 500 | 1070 | 2420 | 2620 | 1400 | 1400 | 1350 | 4-Ф19 | 3005 | 3400 | 1020 | 按泵出口高度而定 |
| QBG300/3-18/2-1.4 | 1810 | 1610 | 235 | 670 | 350 | 500 | 1070 | 2420 | 2620 | 1400 | 1400 | 1350 | 4-Ф19 | 3005 | 3400 | 1020 | 按泵出口高度而定 |
| QBG600/3-18/2-0.4 | 2300 | 2100 | 300 | 850 | 350 | 500 | 1370 | 2720 | 2920 | 2000 | 2000 | 1950 | 4-Ф19 | 3650 | 9000 | 2950 | 按泵出口高度而定 |
| QBG600/3-18/2-0.6 | 2300 | 2100 | 300 | 850 | 350 | 500 | 1370 | 2720 | 2920 | 2000 | 2000 | 1950 | 4-Ф19 | 3650 | 9000 | 2950 | 按泵出口高度而定 |
| QBG600/3-18/2-0.8 | 2300 | 2100 | 300 | 850 | 350 | 500 | 1370 | 2720 | 2920 | 2000 | 2000 | 1950 | 4-Ф19 | 3650 | 9000 | 2950 | 按泵出口高度而定 |
| QBG600/3-18/2-1.0 | 2300 | 2100 | 300 | 850 | 350 | 500 | 1370 | 2720 | 2920 | 2000 | 2000 | 1950 | 4-Ф19 | 3650 | 9000 | 2950 | 按泵出口高度而定 |
| QBG600/3-18/2-1.1 | 2300 | 2100 | 300 | 850 | 350 | 500 | 1370 | 2720 | 2920 | 2000 | 2000 | 1950 | 4-Ф19 | 3650 | 9000 | 2950 | 按泵出口高度而定 |
| QBG600/3-18/2-1.4 | 2300 | 2100 | 300 | 850 | 350 | 500 | 1370 | 2720 | 2920 | 2000 | 2000 | 1950 | 4-Ф19 | 3650 | 9000 | 2950 | 按泵出口高度而定 |
標準產品技術性能
|
類別 |
功能 |
SQB |
SQ | |
|
技術參數 |
供水流量 |
≤600 | ||
|
供水壓力 |
≤2.0MPa | |||
|
水泵數量 |
2或3臺主泵+2臺穩壓泵 | |||
|
單泵功率 |
<200KW | |||
|
恒壓精度 |
<0.02MPa | |||
|
穩定時間 |
<30S | |||
|
控制方式 |
恒壓控制 |
上、下限壓力控制 | ||
|
操作方式 |
手動/自動 | |||
|
啟動方式 |
<1.5KW直接清單,>18.5KW星三角降壓啟動 | |||
|
工作條件 |
電源 |
380V±10%,50Hz±5% | ||
|
溫濕度 |
-10 | |||
|
環境 |
用于室內,無腐蝕性氣體,無易燃易爆氣體,無導電塵埃 | |||
|
絕對海拔 |
≤2000m | |||
|
傾斜交代 |
≤5° | |||
|
震動 |
≤19m/s | |||
變頻調速供水成套設備工作原理如下:
系統正常運行時,用戶用水管網上的壓力傳感器對用戶的用水水壓進行數據采樣,并將壓力信號轉換為電信號,傳輸至PID調節器,然后與用戶設定的壓力值進行比較和運算,并將比較和運算的結構轉換為頻率調節信號和水泵啟動臺數信號分別送至變頻器和可編程控制器(PLC);變頻器數據以調節水泵電機的電源頻率,進而調整水泵的轉速;可編程控制器根據PID調節器傳輸過來的水泵啟動臺數信號控制水泵的動轉。通過對水泵的啟動和停止臺數及其中變頻泵轉速的調節,將用戶管網中的水壓恒穩于用戶預先設定的壓力值,使供水泵組“提升”的水量與用戶管網不斷變化的用水量保持一致,達到“變量恒壓供水”的目的。

感謝您訪問我們揚子江泵業的網站m.xinbochuangdz.com,如有任何水泵疑問我們一定會盡心盡力為您提供優質的服務。






