泵的知識 PUMP KNOWLEDGE
            行業新聞
                您當前位置:網站首頁 >> 泵的知識 >> 詳情內容
            裝配式鋼板給水箱選用指南
時間:2013/8/19 來源:浙江揚子江泵業有限公司
問:我們在貴公司選購了批水泵,要配套不銹鋼裝配式水箱,有水箱的機構圖和尺寸嗎?
答:裝配式鋼板給水箱可以參照以下方法進行設計制作:
裝配式鋼板給水箱

注:n3——墊鐵數量
裝配式鋼板給水箱選用表(一)

注:1.對高強度搪瓷給水箱厚度δ,凡用3、4者,均為5
2.水箱重量未含型鋼底架重量
裝配式鋼板給水箱選用表(二)

注:三種板塊均可在板內開孔接管,其開孔位置應盡量向板塊中心設置,而開孔接管外園與箱板翻邊的小距離不小于30
裝配式鋼板給水箱標準板圖

注:基礎一般為混凝土,也可為其他材料
裝配式鋼板給水箱基礎圖

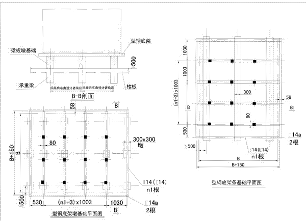
裝配式鋼板給水箱型鋼底架基礎圖
感謝您訪問我們揚子江泵業的網站m.xinbochuangdz.com,如有任何水泵疑問我們一定會盡心盡力為您提供優質的服務.
- 下一篇:設置儲水池應符合的要求
 - 上一篇:PBG屏蔽式管道泵安裝尺寸圖
 






