FMZ化工自吸泵酒精泵飲料泵使用注意事項
時間:2013/4/5 來源:浙江揚子江泵業有限公司
一、JMZ、FMZ移動化工自吸泵(酒精泵)產品概述及特點
JMZ移動式自吸泵采用新型機械密封組裝,安全防爆,長年不漏,適合輸送-35度+80度的各種酒類、飲料、乳品、藥劑、汽油、溶劑油、糖漿等(超過40度吸程將明顯降低)。本泵具有結構緊湊、操作簡便、體積小、重量輕、性能穩定、不用底閥、起動時不需引灌等特點,該泵更換3-4個零件后便可用于輸送濃漿、酸、堿、鹽等液體。此泵性能范圍:流量為3m3/h-100m3/h,揚程為18m-14m,口徑為25mm-150mm
二、JMZ、FMZ移動化工自吸泵(酒精泵)型號意義

三、JMZ、FMZ移動化工自吸泵(酒精泵)性能參數
|
型號 |
口徑(mm |
流量(m3/h |
揚程(m) |
吸程(m) |
電機(kw) |
轉動(r/min) |
型號 | |
|
進口 |
出口 | |||||||
|
25JMZ-22 |
25 |
25 |
3 |
22 |
5 |
1.1 |
2900 |
25JMZ-22 |
|
25JMZ-30 |
25 |
25 |
3 |
30 |
6 |
1.5 |
2900 |
25JMZ-30 |
|
40JMZ-22 |
40 |
25 |
6 |
22 |
5 |
1.5 |
2900 |
40JMZ-22 |
|
40JMZ-30 |
40 |
25 |
6 |
30 |
6 |
2.2 |
2900 |
40JMZ-30 |
|
40JMZ-40 |
40 |
25 |
6 |
40 |
6 |
3 |
2900 |
40JMZ-40 |
|
50JMZ-22 |
50 |
40 |
12 |
22 |
5 |
2.2 |
2900 |
50JMZ-22 |
|
50JMZ-30T |
50 |
50 |
20 |
30 |
6 |
4 |
2900 |
50JMZ-30T |
|
50JMZ-40 |
50 |
40 |
12 |
40 |
6 |
4 |
2900 |
50JMZ-40 |
|
65JMZ-22 |
65 |
50 |
24 |
22 |
5 |
4 |
2900 |
65JMZ-22 |
|
65JMZ-30T |
65 |
65 |
30 |
30 |
6 |
5.5 |
2900 |
65JMZ-30T |
|
80JMZ-22 |
80 |
65 |
48 |
22 |
5 |
7.5 |
2900 |
80JMZ-22 |
|
80JMZ-30 |
80 |
65 |
48 |
30 |
5 |
7.5 |
2900 |
80JMZ-30 |
|
1250JMZ-18 |
1250 |
100 |
100 |
180 |
5 |
15 |
2900 |
1250JMZ |
四、JMZ、FMZ移動化工自吸泵(酒精泵)結構圖

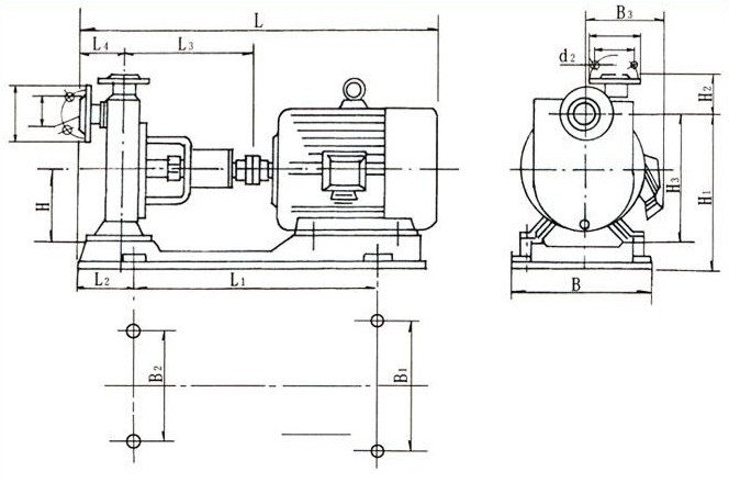
五、JMZ、FMZ移動化工自吸泵(酒精泵)安裝尺寸

六、JMZ、FMZ移動化工自吸泵(酒精泵)使用說明
七、JMZ、FMZ移動化工自吸泵(酒精泵)安裝和拆修
八、JMZ、FMZ移動自吸泵(酒精泵)故障與排除
|
故障 |
產生原因 |
排除方法 |
|
不出液 |
1泵內沒有灌注滿啟動液 2吸入管、壓出管或泵的流產堵塞 3吸入管路漏氣 4吸上高度超過允許范圍 5使用揚程超過了設計揚程 6輸送熱地、發揮性介質 7轉向反了 8機械密封漏氣 |
1重新灌滿液體,第二次啟動則不必灌液 2清除雜物 3檢修和更換吸入管路 4按允許吸上高度重新安裝泵 5重新選泵 6降低吸程或采用取倒灌安裝 7糾正轉向 8檢修或更換機械密封 |
|
自吸時間長 |
1液體溫度過高 2吸入管道過長 3進口管道有Ω型彎曲 4出口淹沒在液體中 |
1液體溫度降至40度以下 2盡量縮短管道 3去除所有Ω型管道 4使出口與大氣相通 |
|
流量不夠 |
1吸入管浸泡的深度不夠 2吸入管路太細或有雜物堵塞 3葉輪嚴重磨損或嚴重腐蝕 4密封環嚴重磨損后腐蝕 5葉輪與泵蓋間隙太長 |
1增加吸入管的浸入深度 2換合適管路,清除雜物 3換新葉輪 4換新密封環 5減少間隙 |
|
揚程不夠 |
1葉輪腐蝕嚴重 2電機配錯 3葉輪與泵蓋間隙太長 |
1換新葉輪 2更換電機 3減少間隙 |
|
軸承過熱 |
1潤滑油不夠或太多 2泵軸與電機軸不同心 3軸承損壞 4軸承質量不符 |
1潤滑油應上密封腔的30-40% 2調整使泵軸與電機軸同心 3更換新軸 4降低噪音軸承 |
|
振動嚴重 |
1泵軸電機軸不同心 2泵軸彎曲 |
1調整使泵軸與電機軸同心 2重新換軸 |
|
密封泄漏 |
1彈簧壓力不足 2動環或靜環端腐蝕、磨損或劃傷 3動環密封圈腐蝕變形 4異物或介質結晶影響了動環的主向移動 |
1調整彈簧壓縮量或換彈簧 2修復或更換動環或靜環 3重新換動環密封圈 4去除異物或介質的結晶 |
|
電機過熱 |
1液體比重大或溫度太高 2機械密封彈簧調的太緊 3電壓過低 4裝配質量差,有些零件磨擦或電機與泵軸的不同心 |
1加大電機 2重新調整彈簧壓縮量 3提高電壓 4檢查裝配質量,排除裝配故障 |











