IS/ISR臥式單級單吸清水離心泵結構圖及結構說明
時間:2013/3/12 來源:浙江揚子江泵業有限公司
本系列泵是單級單吸懸臂式離心泵,供汲送清水及物理化學性質類似于水不含固體顆粒的液體之用。IS型泵介質溫度適用于80℃以下;ISR型泵適用于輸送130℃以下熱水;ISY型泵用于輸送汽油,柴油等輕油
IS/ISR單級單吸離心泵用途:
IS/ISR單級單吸離心泵適用于工業和民用建筑業,如冶金、電站、紡織、化工、印染、陶瓷、橡膠、采暖、余熱利用、空調等。
IS/ISR單級單吸離心泵產品特點:
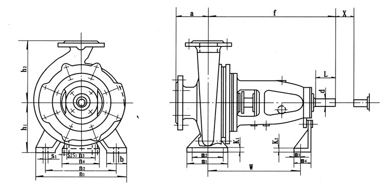
1、IS/ISR型臥式單級單吸清水離心泵根據國際標準ISO2858所規定的性能和尺寸設計的,主要由泵體、泵蓋、葉輪、軸、密封環、軸套及懸架軸承不見等組成。
2、IS/ISR型臥式單級單吸清水離心泵的泵體和泵蓋部分,是從葉輪背面處剖分的,即通常所說的后開門結構形式。其優點是檢修方便,檢修時不動泵體,吸入管路,排出管路和電動機,只需拆下加長聯軸器的中間聯接件,即可退出轉子部分進行檢修。
3、泵的殼體(即泵體和泵蓋)構成泵的工作室。葉輪、軸和滾動軸承等為泵的轉子。懸架軸承部件支撐著泵的轉子部分,滾動軸承受泵的徑向力和軸向力。
4、為了平衡泵的軸向力,大多數泵的葉輪前、后均設有密封環,并在葉輪后蓋板上設有平衡孔,由于有些泵軸向力不大,葉輪背面未設密封環和平衡孔。
5、泵的軸向密封環是由填料壓蓋,填料環和填料等組成,以防止進氣或大量漏水。泵的葉輪如有平衡,則裝有軟填料的空腔與葉輪吸入口相通,如葉輪入口處液體處于真空狀態,則很容易沿著軸套表面進氣,故在填料腔內裝有填料環通過泵蓋上的小孔,將泵室內壓力水引至填料環進行密封。泵的葉輪如沒有平衡孔,由于葉輪背面液體壓力大于大氣壓,因而不存在漏氣問題,故可不裝填料環。
6、為避免軸磨損,在軸通過填料腔的部位裝有軸套保護。軸套與軸之間準有O型密封圈,以防止沿著配合表面進氣或漏水。
7、泵的傳動方式是通過加長彈性聯軸器與電動機聯接的,泵的旋轉方向,從驅動端看,為順時針方向旋轉。
IS/ISR單級單吸離心泵型號意義:
IS/ISR單級單吸離心泵結構圖及結構說明:
ISR系列單級單吸熱水離心泵的主要零件有泵體、葉輪、泵蓋、懸架部件,機械密封部件、軸等。該系列泵為后開門結構,其優點是轉子部件檢修或更換無須拆卸管道,轉子部件由懸架支撐哲(請參考ISR泵結構圖)。泵軸向力的平衡,軸向力較大的泵,葉輪設有平衡孔,其余軸向力由軸承承受。軸封形式采用不平衡單端面機械密封,軸封室外設有水冷卻套,可以通過泵側面1/4管接口接通外來冷水,對軸封進行冷卻。傳動方式,泵的傳動是通過聯軸器與電機直聯。從傳動方向看,泵為順時針旋轉。
IS/IR型臥式清水離心泵泵體及腳座尺寸

| 產品型號 | 泵 | 泵腳座 | 螺栓孔 | 軸端 | 間隔 | ||||||||||||||||
| a | F | h1 | h2 | b | m1 | m2 | m3 | m | nl | n2 | n3 | kl | k2 | W | S1 | S2 | d | L | X | ||
| 50-32-125 | 80 | 385 | 112 | 140 | 50 | 100 | 70 | 19 | 60 | 190 | 140 | 110 | 145 | 10 | 285 | M12 | M12 | 24 | 50 | 100 | |
| 50-32-160 | 132 | 160 | 240 | 190 | |||||||||||||||||
| 50-32-200 | 160 | 180 | |||||||||||||||||||
| 50—32-250 | 100 | 500 | 180 | 225 | 65 | 125 | 95 | 25 | 65 | 320 | 250 | 14 | 370 | 32 | 80 | ||||||
| 65-50-125 | 80 | 385 | 112 | 140 | 50 | 100 | 70 | 19 | 60 | 210 | 160 | 110 | 145 | 10 | 285 | M12 | M12 | 24 | 50 | 1O0 | |
| 65-50-160 | 132 | 160 | 240 | 190 | |||||||||||||||||
| 65-40-200 | 100 | 160 | 180 | 265 | 212 | ||||||||||||||||
| 65-40-250 | 500 | 180 | 225 | 65 | 125 | 95 | 25 | 65 | 320 | 250 | 14 | 370 | 32 | 80 | |||||||
| 65-40-315 | 125 | 200 | 250 | 345 | 280 | ||||||||||||||||
| 80-65-125 | 100 | 385 | 132 | 160 | 50 | 100 | 70 | 19 | 60 | 240 | 190 | 110 | 145 | 10 | 285 | M12 | M12 | 24 | 50 | 100 | |
| 80-65-160 | 160 | 180 | 265 | 212 | |||||||||||||||||
| 80-50-200 | 200 | ||||||||||||||||||||
| 80-50-250 | 125 | 500 | 180 | 225 | 65 | 125 | 95 | 25 | 65 | 320 | 250 | 14 | 370 | 32 | 80 | ||||||
| 80-50-315 | 225 | 280 | 345 | 280 | |||||||||||||||||
| 100-80-125 | 100 | 385 | 160 | 180 | 65 | 125 | 95 | 19 | 60 | 280 | 212 | 110 | 145 | 10 | 285 | M12 | M12 | 24 | 50 | ||
| 100-80-160 | 500 | 200 | 24 | 32 | 80 | 100 | |||||||||||||||
| 100-65-200 | 180 | 225 | 25 | 320 | 250 | 14 | 370 | 140 | |||||||||||||
| M16 | |||||||||||||||||||||
| 100-65-250 | 125 | 200 | 250 | 80 | 160 | 120 | 65 | 360 | 280 | ||||||||||||
| 100一65-315 | 530 | 225 | 280 | 28 | 400 | 315 | 42 | 110 | |||||||||||||
| 125-100-200 | 125 | 500 | 200 | 280 | 80 | 160 | 120 | 25 | 360 | 280 | 110 | 145 | 14 | 370 | M16 | M12 | 32 | 80 | |||
| 125-100-250 | 140 | 530 | 225 | 28 | 65 | 400 | 315 | 42 | 110 | 140 | |||||||||||
| 125-100-315 | 250 | 315 | |||||||||||||||||||
| 125-100-400 | 280 | 355 | 100 | 200 | 150 | 500 | 400 | M20 | |||||||||||||
| 150-125-250 | 140 | 530 | 250 | 355 | 80 | 160 | 120 | 28 | 65 | 400 | 315 | 110 | 145 | 14 | 370 | M16 | M12 | 42 | 110 | 140 | |
| 150-125-315 | 280 | 100 | 200 | 150 | 500 | 400 | M20 | ||||||||||||||
| 150-125-400 | 315 | 400 | |||||||||||||||||||
| 200-150-250 | 160 | 530 | 280 | 375 | 100 | 200 | 150 | 28 | 65 | 500 | 400 | 110 | 145 | 14 | 370 | M20 | M12 | 42 | 110 | 180 | |
| 200-150-315 | 670 | 315 | 400 | 38 | 38 | 550 | 450 | 140 | 200 | 30 | 500 | M16 | 48 | ||||||||
IS/ISR單級單吸離心泵基本參數:
|
型 號 |
流量 mз/h |
揚程 m |
轉速 r/min |
電機功率 KW |
口徑mm | |
|
吸入 |
排出 | |||||
|
IS50-32-125 |
12.5 |
20 |
2900 |
2.2 |
50 |
32 |
|
6.3 |
5 |
1450 |
0.55 |
50 |
32 | |
|
IS50-32-160 |
12.5 |
32 |
2900 |
3 |
50 |
32 |
|
6.3 |
8 |
1450 |
0.55 |
50 |
32 | |
|
IS50-32-200 |
12.5 |
50 |
2900 |
0.5 |
50 |
32 |
|
6.3 |
12.5 |
1450 |
0.75 |
50 |
32 | |
|
IS50-32-250 |
12.5 |
80 |
2900 |
11 |
50 |
32 |
|
6.3 |
20 |
1450 |
1.5 |
50 |
32 | |
|
IS65-50-125 |
25 |
20 |
2900 |
3 |
65 |
50 |
|
12.5 |
5 |
1450 |
0.55 |
65 |
50 | |
|
IS65-50-160 |
25 |
32 |
2900 |
5.5 |
65 |
50 |
|
12.5 |
8 |
1450 |
0.75 |
65 |
50 | |
|
IS65-40-200 |
25 |
50 |
2900 |
7.5 |
65 |
40 |
|
12.5 |
12.5 |
1450 |
1.1 |
65 |
40 | |
|
IS65-40-250 |
25 |
80 |
2900 |
15 |
65 |
40 |
|
12.5 |
20 |
1450 |
2.2 |
65 |
40 | |
|
IS65-40-315 |
25 |
125 |
2900 |
30 |
65 |
40 |
|
12.5 |
32 |
1450 |
4 |
65 |
40 | |
|
IS80-65-125 |
50 |
20 |
2900 |
5.5 |
80 |
65 |
|
25 |
5 |
1450 |
0.75 |
80 |
65 | |
|
IS80-65-160 |
50 |
32 |
2900 |
7.5 |
80 |
65 |
|
25 |
8 |
1450 |
1.5 |
80 |
65 | |
|
IS80-50-200 |
50 |
50 |
2900 |
15 |
80 |
50 |
|
25 |
12.5 |
1450 |
2.2 |
80 |
50 | |
|
IS80-50-250 |
50 |
80 |
2900 |
22 |
80 |
50 |
|
25 |
20 |
1450 |
3 |
80 |
50 | |
|
IS80-50-315 |
50 |
125 |
2900 |
37 |
80 |
50 |
|
25 |
32 |
1450 |
5.5 |
80 |
50 | |
|
IS100-80-125 |
100 |
20 |
2900 |
11 |
100 |
80 |
|
50 |
5 |
1450 |
1.5 |
100 |
80 | |
|
IS100-80-160 |
100 |
32 |
2900 |
15 |
100 |
80 |
|
50 |
8 |
1450 |
2.2 |
100 |
80 | |
|
IS100-65-200 |
100 |
50 |
2900 |
22 |
100 |
65 |
|
50 |
12.5 |
1450 |
4 |
100 |
65 | |
|
IS100-65-250 |
100 |
80 |
2900 |
37 |
100 |
65 |
|
50 |
20 |
1450 |
5.5 |
100 |
65 | |
|
IS100-65-315 |
100 |
125 |
2900 |
75 |
100 |
65 |
|
50 |
32 |
1450 |
11 |
100 |
65 | |
|
IS125-100-200 |
200 |
50 |
2900 |
45 |
125 |
100 |
|
100 |
12.5 |
1450 |
7.5 |
125 |
100 | |
|
IS125-100-250 |
200 |
80 |
2900 |
75 |
125 |
100 |
|
100 |
20 |
1450 |
11 |
125 |
100 | |
|
IS125-100-315 |
200 |
125 |
2900 |
110 |
125 |
100 |
|
100 |
32 |
1450 |
15 |
125 |
100 | |
|
IS125-100-400 |
100 |
50 |
1450 |
30 |
125 |
100 |
|
IS150-125-250 |
200 |
20 |
1450 |
18.5 |
150 |
125 |
|
IS150-125-315 |
200 |
32 |
1450 |
30 |
150 |
125 |
|
IS150-125-400 |
200 |
50 |
1450 |
45 |
150 |
125 |
|
IS200-150-250 |
400 |
20 |
1450 |
37 |
200 |
150 |
|
IS200-150-315 |
400 |
32 |
1450 |
55 |
200 |
150 |
|
IS200-150-400 |
400 |
50 |
1450 |
90 |
200 |
150 |











